Plans de façades : définition, méthodes et applications en rénovation

plan de facade batiment elevation architecture renovation
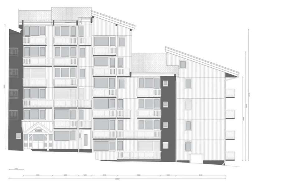
Plan de façade d’un bâtiment existant (élévation issue d’un relevé)

Les plans de façades sont souvent nécessaires dès qu’un projet concerne un bâtiment existant. Pourtant, leur rôle est parfois sous-estimé, alors qu’ils conditionnent directement la qualité d’une rénovation, d’un relevé ou d’une mise au propre technique.

Dans la pratique, il ne suffit pas d’avoir une vue en plan. Il faut aussi représenter précisément les faces extérieures du bâtiment, avec leurs hauteurs, leurs ouvertures et leurs alignements réels.

Autrement dit, les plans de façades permettent de passer d’un bâtiment observé sur le terrain à un document exploitable pour concevoir, vérifier et sécuriser un projet.

Sommaire :

Définition des plans de façades

Pourquoi les plans de façades sont indispensables

Comment obtenir des plans de façades fiables

Comment choisir la bonne méthode

Exemples avant / après en rénovation

Erreurs fréquentes

FAQ

Définition des plans de façades

Qu’est-ce qu’un plan de façade ?

Un plan de façade est une représentation en élévation verticale d’une face extérieure d’un bâtiment. Contrairement au plan 2D classique, il permet de visualiser le bâtiment vu de face.

Il fait apparaître :

  • les ouvertures (portes, fenêtres),
  • les hauteurs et niveaux,
  • les lignes de toiture,
  • les éléments architecturaux,
  • les éventuels défauts d’alignement.

Ce document sert de base de travail pour analyser un bâtiment existant ou concevoir une transformation.

Exemple de plan de façade réalisé à partir d’un relevé existant. On distingue les niveaux du bâtiment, les ouvertures et la structure générale.

"plan de facade batiment elevation releve terrain
Plan de façade d’un bâtiment existant (élévation issue d’un relevé terrain)

Pourquoi c’est un document clé ?

Les façades concentrent souvent les enjeux techniques et réglementaires : esthétique, isolation, modification d’ouvertures ou contraintes administratives.

Sans plan fiable, les décisions sont prises sur une base approximative, ce qui peut entraîner des erreurs en phase travaux.


Pourquoi les plans de façades sont indispensables

Comprendre l’existant

Dans de nombreux projets, les plans d’origine sont absents ou obsolètes. Les plans de façades permettent de reconstruire une vision fiable du bâtiment tel qu’il est réellement.

Préparer une rénovation

Ils permettent de comparer clairement l’état existant et l’état projeté : création d’ouvertures, modification des volumes, ravalement ou isolation.

Coordonner un projet

Les plans de façades s’intègrent avec les plans 2D, les coupes ou les maquettes BIM. Ils facilitent la communication entre les différents intervenants.


Comment obtenir des plans de façades fiables

Dans certains cas, les façades peuvent être relevées à l’aide de prises de vue par drone, permettant de capturer rapidement des zones difficiles d’accès.

alt="drone relevé facade batiment photogrammetrie"
Captation de façade par drone dans le cadre d’un relevé

Le relevé manuel

Adapté aux petits bâtiments simples. Il repose sur des mesures terrain et une retranscription en DAO.

Limites : précision variable, temps important, erreurs possibles.

La photogrammétrie

Permet de reconstituer un support à partir de photos, souvent par drone.

Limites : dépend des conditions de prise de vue et de la qualité des surfaces.

Le scan 3D

Le scan 3D permet d’obtenir un nuage de points dense servant de base fiable pour produire des plans de façades précis.

Il est particulièrement adapté aux bâtiments complexes ou aux projets à fort enjeu technique.


Comment choisir la bonne méthode pour vos plans de façades ?

Le choix dépend principalement de trois critères :

  • la taille et la complexité du bâtiment,
  • le niveau de précision attendu,
  • l’usage final des plans (travaux, administratif, BIM…).

Dans certains cas, un relevé simple peut suffire. Dans d’autres, notamment sur des projets techniques, une méthode plus fiable permet d’éviter des erreurs coûteuses.

De quoi avez-vous réellement besoin ?

Un utilisateur se pose généralement ces questions :

  • Mes plans existants sont-ils exploitables ?
  • Quel niveau de précision est nécessaire ?
  • Est-ce que le scan 3D est utile dans mon cas ?
  • Quel impact sur le coût global du projet ?

Pourquoi la qualité du relevé impacte directement le coût du projet

Un plan imprécis peut entraîner des écarts en phase travaux : ajustements, reprises, incompréhensions entre intervenants.

À l’inverse, une base fiable permet de sécuriser les décisions en amont et de limiter les imprévus.


Exemples avant / après en rénovation

Avant : état existant

Le relevé permet de capturer la géométrie réelle du bâtiment, y compris ses irrégularités.

Après : plan exploitable ou projet

Les plans de façades permettent ensuite de produire une version claire, utilisable pour la conception ou la rénovation.

Cette comparaison facilite la compréhension du projet et sécurise les décisions.


Erreurs fréquentes sur les plans de façades

Se baser sur des plans anciens

Un bâtiment évolue. Des plans non vérifiés peuvent être inexacts.

Sous-estimer la complexité

Une façade peut sembler simple mais présenter des déformations ou des écarts.

Confondre dessin propre et donnée fiable

Un plan visuellement propre n’est pas forcément exact.

Ne pas anticiper les usages futurs

Les plans peuvent être utilisés pour du BIM ou de la coordination technique. Cela doit être anticipé.


FAQ - Questions fréquentes sur les plans de façades

Qu’est-ce qu’un plan de façade ?

Ai-je besoin de plans de façades ?

Mes anciens plans sont-ils exploitables ?

Quel niveau de précision choisir ?

Scan 3D ou relevé classique ?

Combien ça coûte ?

Combien de temps ?

Utilisation en BIM ?

Formats de livraison ?

Qu’est-ce qu’un plan de façade ?

Un plan de façade est une représentation en élévation d’une face extérieure de bâtiment, permettant de visualiser les hauteurs, les ouvertures et les éléments architecturaux.

Est-ce que j’ai besoin de plans de façades pour mon projet ?

Dans la plupart des projets de rénovation, oui. Ils permettent de travailler sur une base fiable et d’éviter des erreurs en phase travaux.

Mes anciens plans sont-ils exploitables ?

Pas toujours. Un bâtiment évolue dans le temps. Sans vérification terrain, les plans existants peuvent être inexacts.

Quel niveau de précision est nécessaire ?

Tout dépend du projet. Une rénovation légère peut tolérer une précision moindre, alors qu’un projet technique ou complexe nécessite une base plus fiable.

Scan 3D ou relevé classique : que choisir ?

Le relevé classique peut suffire sur de petits projets. Le scan 3D devient pertinent dès que la complexité, la taille ou les enjeux augmentent.

Combien coûtent des plans de façades ?

Le coût dépend de la surface, de la complexité du bâtiment, de la méthode utilisée et du niveau de détail attendu.

Combien de temps faut-il pour produire des plans de façades ?

De quelques jours à plusieurs semaines selon la taille du site et la complexité du projet.

Peut-on utiliser ces plans pour du BIM ?

Oui, s’ils sont produits à partir d’un relevé fiable, ils peuvent être intégrés dans une maquette numérique.

Quels sont les formats de livraison des plans de façades ?

Généralement au format DWG (AutoCAD) ou PDF.


Conclusion

Les plans de façades sont un élément clé pour comprendre un bâtiment et sécuriser un projet de rénovation ou de transformation.

Leur qualité dépend directement de la méthode de relevé et du niveau de précision choisi.

Si vous avez un projet nécessitant des plans de façades, un échange permet généralement de clarifier :

  • la méthode adaptée,
  • le niveau de précision nécessaire,
  • et les livrables utiles pour votre projet.

Pourquoi faire appel à Axxess Data pour vos plans de façades ?

Dans les projets de rénovation, de bâtiment, d’industrie ou de patrimoine, la qualité d’un plan de façade ne dépend pas uniquement de son rendu visuel. Elle repose surtout sur la fiabilité du relevé et sur sa capacité à être exploité dans un cadre technique cohérent.

Axxess Data intervient dans la production de plans de façades à partir de relevés fiables (scan 3D, photogrammétrie ou méthodes adaptées au projet). L’objectif est de fournir des livrables réellement exploitables pour la conception, la rénovation ou l’intégration dans des workflows BIM.

Nous accompagnons les acteurs du projet dans le choix de la méthode, le niveau de précision et le type de livrables, avec une attention particulière portée à la cohérence des données et à leur utilisation concrète sur le terrain.

Vous pouvez également :

Pour toute question ou pour échanger sur votre projet, un premier échange permet généralement de clarifier rapidement vos besoins.